Ficha do imóvel
Oportunidade de Investimento!!! Barcelos, Barcelos, V.Boa, V.Frescainha
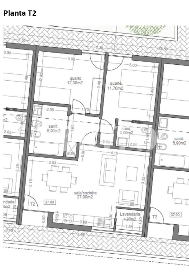
- Apartamento
- 2
- 2
- 76 m2
Referência:
MIBC-2524
Oportunidade de Investimento!!!
Apartamentos T2 perto do IPCA.
Ideais para o mercado de arrendamento.
Em fase de projecto.
--- Venha conhecer ---
Características
- Referência: MIBC-2524
- Estado: Planta
- Preço: 117.000€
- Área útil: 76 m2
- Quartos: 2
- WC: 2
Divisões
Cozinha
6m2
Ver mais
Equipada
Pavimento: Mosaico cerâmico
Paredes: Azulejo
Tecto: Falso pladur
Equipamento: Placa, Forno, Esquentador, Exaustor
Quarto
12m2
Ver mais
Pavimento: Flutuante
Paredes: Pintadas
Tecto: Falso pladur
Roupeiros: Embutidos
Quarto
12m2
Ver mais
Suite
Pavimento: Flutuante
Paredes: Pintadas
Tecto: Falso pladur
Roupeiros: Embutidos
W.C.
6m2
Ver mais
Pavimento: Mosaico cerâmico
Paredes: Azulejo
Tecto: Falso pladur
Tipo: Completo
Equipamento: Base chuveiro
W.C.
3m2
Ver mais
Pavimento: Mosaico cerâmico
Paredes: Azulejo
Tecto: Falso pladur
Tipo: Suite
Equipamento: Base chuveiro
Geral
Climatização
Painel solar
Caixilharia
Vidro Duplo
Domótica
Estores elétricos
Ar Condicionado
Pré-instalação
Imóveis similares
Venda
120.000 €
- 1
- 1
- 58 m2
Venda
Preço sob consulta
Reservado
- 3
- 2
- 140 m2
